项目概况
业主为90后,对新事物持开放态度,希望自己的房子比较新潮,过十年也不落伍。外墙用装饰铝板和石材为主,缔造高端华丽的超级别墅。
本项目总建筑面积730.51㎡,其中一层和二层建筑面积180.23㎡,三层建筑面积167.01㎡。

▲东南角鸟瞰图
户型设计

▲一层平面图
一层:门厅、玄关、客厅、中西厨、餐厅、储藏室、公卫、两卧室及公用卫生间;

▲一层平面图
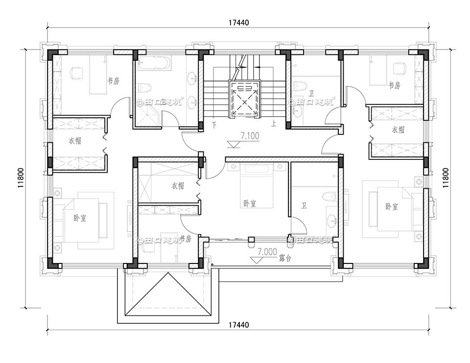
二层:两套房,其中一套含卧室、书房、衣帽间、卫生间,另一套含卧室、客厅、书房、衣帽间、卫生间;

▲三层平面图
三层:三套房,均含卧室、书房、衣帽间、卫生间;

▲地下室平面图
地下室:空间暂定,可做影音室、酒窖、棋牌室等;
造型设计

▲东南角鸟瞰图

▲西北角鸟瞰图

▲院外南立面图

▲院内南立面透视图

▲北立面透视图

▲东立面透视图

▲西北角面透视图

▲西南角透视图

▲东南角透视图
END