项目概况
业主是两兄弟,久居上海,地基比较紧凑,正面朝西,唯一的路只有2米,走材料等都不方便,恰逢邻居也要重新建房,所以趁此机会想把老房子重建。
本项目总建筑面积759.8㎡,其中一层建筑面积151.7㎡,二层151.7㎡,三层面积161.5㎡,四层面积157.6㎡,阁楼面积137.3㎡。

▲总平面图
户型设计

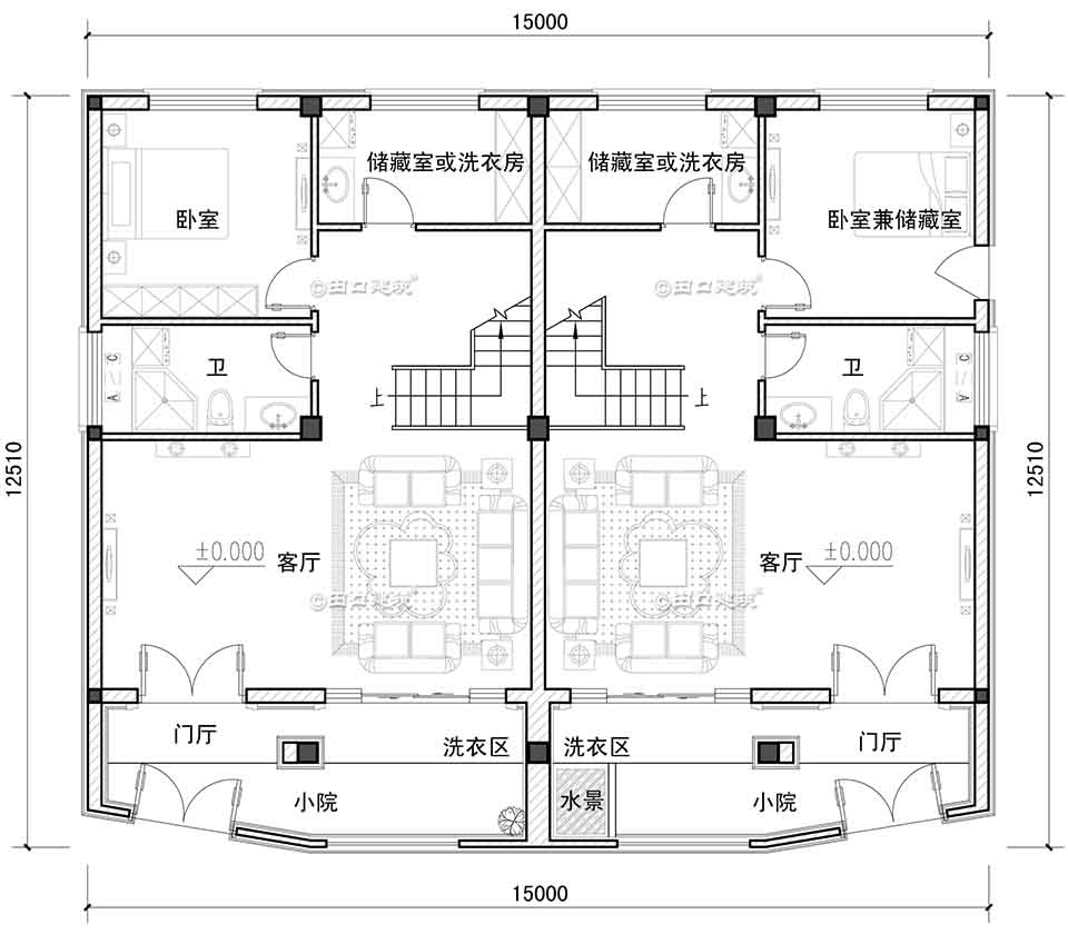
▲一层平面图
每户均设计了门厅、客厅、卫、卧室、储藏室;

▲二层平面图
每户均设计了厨房、餐厅;

▲三层平面图
每户均设计了三个卧室(其中一个带衣帽间)、公共衣帽间、卫;

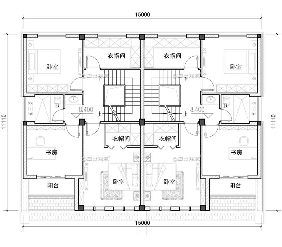
▲四层平面图
每户均设计了两卧室(其中一个带衣帽间)、书房、公共衣帽间、阳台;

▲阁楼平面图
每户均设计了起居室、健身房、棋牌室等可以自己划分、两个露台;
造型设计

▲西北角鸟瞰图

▲东南角鸟瞰图

▲正立面透视图

▲西南角透视图

▲南立面透视图

▲东南角透视图

▲西北角透视图

▲入口透视图
END