项目概况
农村的房子总是会有很多很多的限制,而且很多完全不可控,真正注重建筑设计的话,其实还是有很作需要注意的。今天我们就以此房子为例子分析一下如何根据场地设进行计。 地块极不规则,东西两侧有邻居,北面临路,,西侧部分临小水库堤坝,南侧远处可以群山。

主朝向是由农村风水先生确定;院子东南角将来会留人行入口,故此处视线停留时间较长,建筑需对此作出应对,我们的策略是设计一个立面成为视觉停留点;西侧堤坝约一层楼高,堤坝上有路,所以来自堤坝的视线干扰必须要考虑,我们为屏蔽视线,西侧主要是实墙为主,留小窗;二三层从东北角远处看过来非常清楚,没有遮挡,而且道路就是从东北方向过来,尖角对人的视觉来讲太过于尖锐,故切掉一个角。
本项目总建筑面积346.5㎡,其中一层125.0平方米,二层123.9平方米,三层97.6平方米。

▲鸟瞰图
院子里做了一个浅水池,部分硬化铺装,草皮为主,加汀步。 内部户型合里,都是套房设计,三层朝向水库视线开阔,留了露台,以便业主将来户外活动;
户型设计

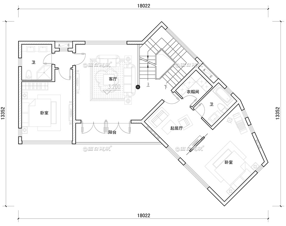
▲一层平面图
厨房、餐厅、玄关、公卫、套房。农村很多人家将客厅做在二层,因为邻居串门,偶尔会有干过农活的邻居,沙发保持清洁不容易;

▲二层平面图
两个套房、客厅、阳台;

▲三层平面图
一个套房、客厅、露台;
造型设计

▲东南角鸟瞰图

▲正立面透视图

▲西南角透视图

▲东南角透视图

▲南面入口及车位透视图

▲北立面透视图

▲东北角透视图

▲东侧车位透视图
END