项目概况
中式民居代表着中华文化,粉墙黛瓦、廊檐墀头是典型的符号,随着技术的不断进步,现在已经不必像以前那般用木结构来建造,取而代之的是钢筋混凝土,这样建造出来的房子更为耐久,同时也节约了不少木材资源。今天的业主儒雅沉稳,骨子里有着浓厚的中式情怀,希望建造一座中式山地别墅。
我们从等高线出发,尽量减少土方量,最大化的利用地形,将建筑分为四个平面,最下面均为辅助功能,将整个房子抬高,使得居住空间有更好的视线与日照。
此别墅占地面积261.3平方米(一层),车库层106.0平方米,夹层22.2平方米,一层261.3平方米,二层143.6平方米。

▲鸟瞰图
户型设计

▲车库层平面图
入口、机动车和非机动车库;

▲夹层平面图
因为高差较大,此层主要联系车库层与一层;

▲一层平面图
父母房(带卫生间、衣帽间、阳台、露台),一客房,厨房、客厅、大小餐厅、茶室、工人房、玄关、公卫、外廊;

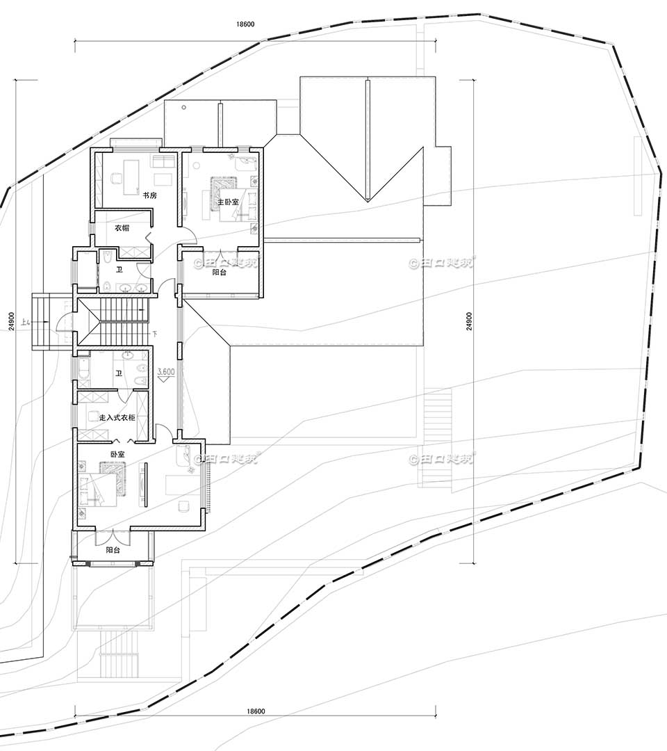
▲二层平面图
两大套房(带卫生间、衣帽间、阳台,其中一个还带书房);
造型设计

▲鸟瞰图

▲鸟瞰图

▲南立面透视图

▲夹层平台透视图

▲一层客厅餐厅前院透视图

▲一层东院透视图

▲一层东院透视图

▲一层东院透视图

▲一层东院透视图

▲一层西院透视图
END