项目概况
今天介绍这栋别墅地基非常有限,现状南北都是房子,东面是邻居空地,西边的小路,呈东小西大的喇叭口形状,因为农村的房子都是方正的,几乎很少有人家做斜的,所以导致主体房子进深只有7米出头,我们在设计平面布局的时候把公共空间放在整个房子靠近中间的位置,利用地形做了局部深度扩大,充分利用地形。
此别墅占地面积127.6平方米(地下室),一层110.2平方米,二层110.2平方米,三层110.2平方米。

▲鸟瞰图
户型设计

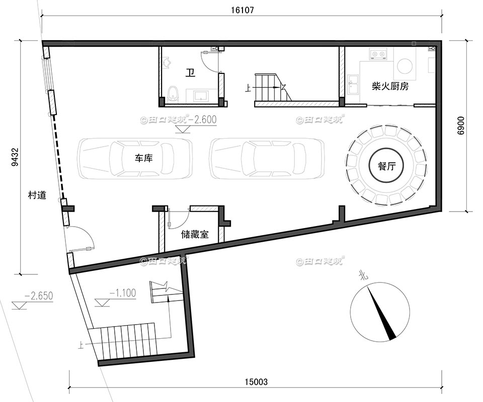
▲地下室平面图
利用地基的高差,做了局部的地下室,地下室可做停车、办酒席用,设计了柴火厨房、卫生间、储藏室等辅助空间;

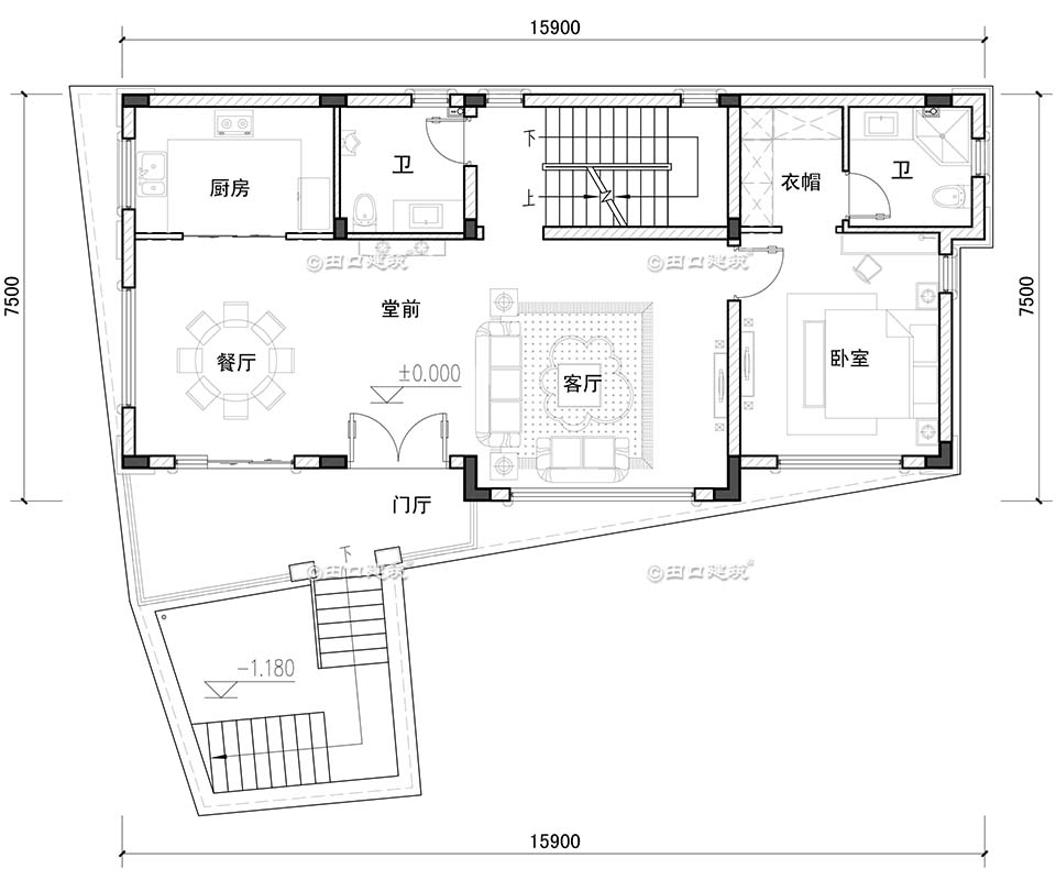
▲一层平面图
一大套房(带卫生间、衣帽间),堂前、客厅、厨房、餐厅、公卫,而且公共空间看不到卫生间的门,私密性好;

▲二层平面图
客厅挑空,两大套房(带卫生间、衣帽间),一阳台、一小起居室;

▲三层平面图
客厅挑空,两大套房(带卫生间、衣帽间),一卧室(可改书房),一公卫,一露台、一小起居;
造型设计

▲鸟瞰图

▲南立面图

▲正立面透视图

▲西南角透视图

▲东南角透视图

▲西北角透视图
END