项目概况
法式别墅作为上个世纪的别墅风格,直到现在也非常受欢迎。作为经典建筑风格之一,外墙石材装饰,沉稳气派。
地基背山面阳,屋后还有小溪从山上流淌下来,地理环境非常不错。屋主喜欢法式,且不求房间七八间,够用就好,也不用三四层高,这给了我们很大的发挥余地。地基很大,东西有二十几米,南北最长也有二十几米,由于北面靠山,有很多山石,难以开挖,所以我们将北面留出作为院子,利用山上溪水挖了一个鱼池。建筑顺应地形布置,西浅东深,主要往东西向伸展,使内部空间最大化向阳。由于地基高于室外道路,利用高差做了半地下车库。
此别墅占地面积186.7平方米(除去西侧辅房),负一层185.1平方米,一层186.7平方米,二层156.6平方米。

▲鸟瞰图
户型设计

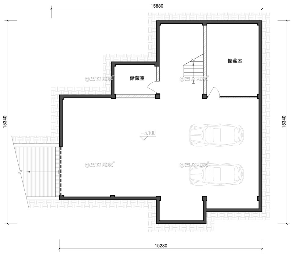
▲负一层平面图
地面院子空间紧凑,所以做了半地下室作为停车使用,同时设置了储物间;

▲一层平面图
主房门厅、玄关作为入户形象,大客厅、门廊、棋牌室、客卧带卫生间、储藏室、茶水间、公卫,厨房和餐厅单独设在辅房;

▲二层平面图
四个套房设计,非常豪华,还有三个露台;
造型设计

▲南立面图

▲西南角透视图

▲北立面透视图
施工照片

▲正立面实景

▲门厅

▲西侧烟囱

▲东侧

▲线条
END