项目概况
木汐民宿,位于南田岛鹤浦镇大沙村村口,背靠青山,面朝大海,门前的果树林种满了桔子树、梨树和栗子树,恬静舒适,静谧芳香。
本工程共4层,地下1层,地上4层;层高从地下层至三层分别是3.2米、3.2米、3.1米、3.1米、3.1米。地下层建筑面积129.1平方米,首层建筑面积112平方米,二层建筑面积112平方米,三层建筑面积112平方米,阁楼层建筑面积82.6平方米,总建筑面积547.7平方米。

▲整体鸟瞰图
户型设计

▲地下一层平面图
单人套间、双人套间、员工房、棋牌室、储藏间以及下沉庭院;

▲一层平面图
民宿前厅、大堂、服务台、三个单人套间;

▲二层平面图
两个单人套间、一个两卧配置的家庭套房;

▲三层平面图
两个单人套间、一个双人套间以及一个大套间,所有的套间均带观景阳台(露台);

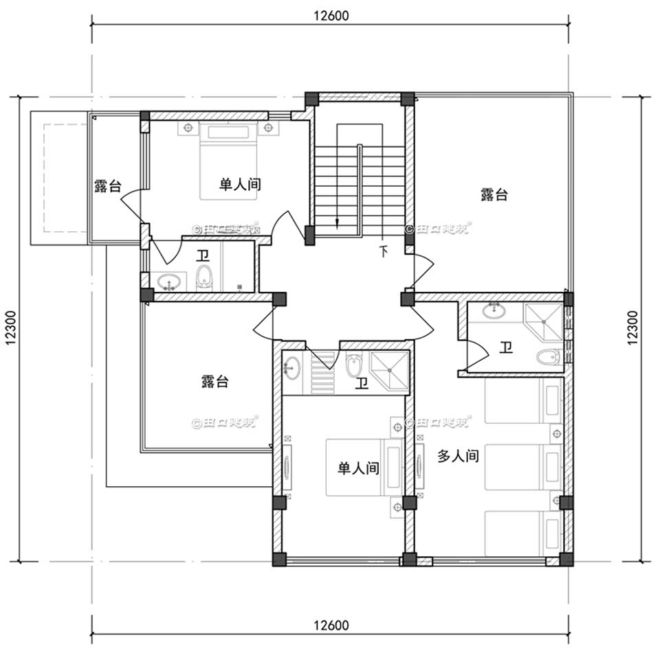
▲三层平面图
两个单人套间、一个多人套间;南面西面和北面共三个露台,让周边美景一览无余(露台);
造型设计

▲西南角度鸟瞰

▲西南角度透视

▲东南角度透视

▲南立面透视远景

▲阳台看海
实景照片













END