萧山胡宅

  • 建设地址:香山河上镇
  • 建筑风格:高端定制,新中式,新亚洲
  • 占地尺寸:15.80X13.05
  • 结构形式:框架
  • 占地面积:178.8㎡
  • 毛坯造价:71.0万




 项目概况 


本项目位于杭州萧山河上镇,总建筑面积507.73㎡,其中一层建筑面积为178.82㎡,二层建筑面积为152.08㎡,三层建筑面积176.83㎡。

▲正立面图



 户型设计 


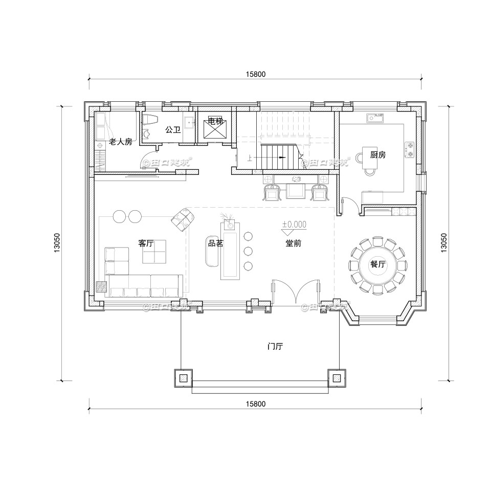
▲一层平面图

一层:门厅、客厅、挑空堂前品茗区、厨房、餐厅、老人房、公卫、电梯;

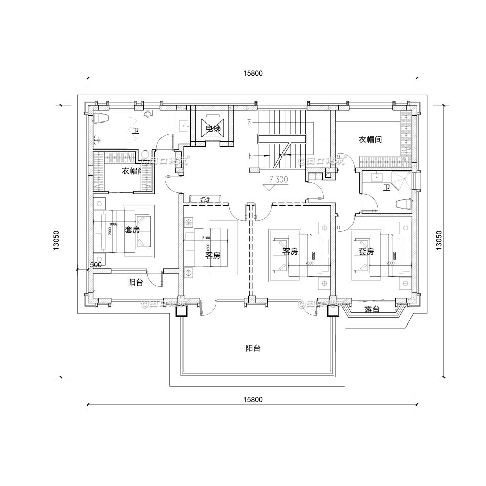
▲二层平面图

二层:东西两侧各一个大套房;

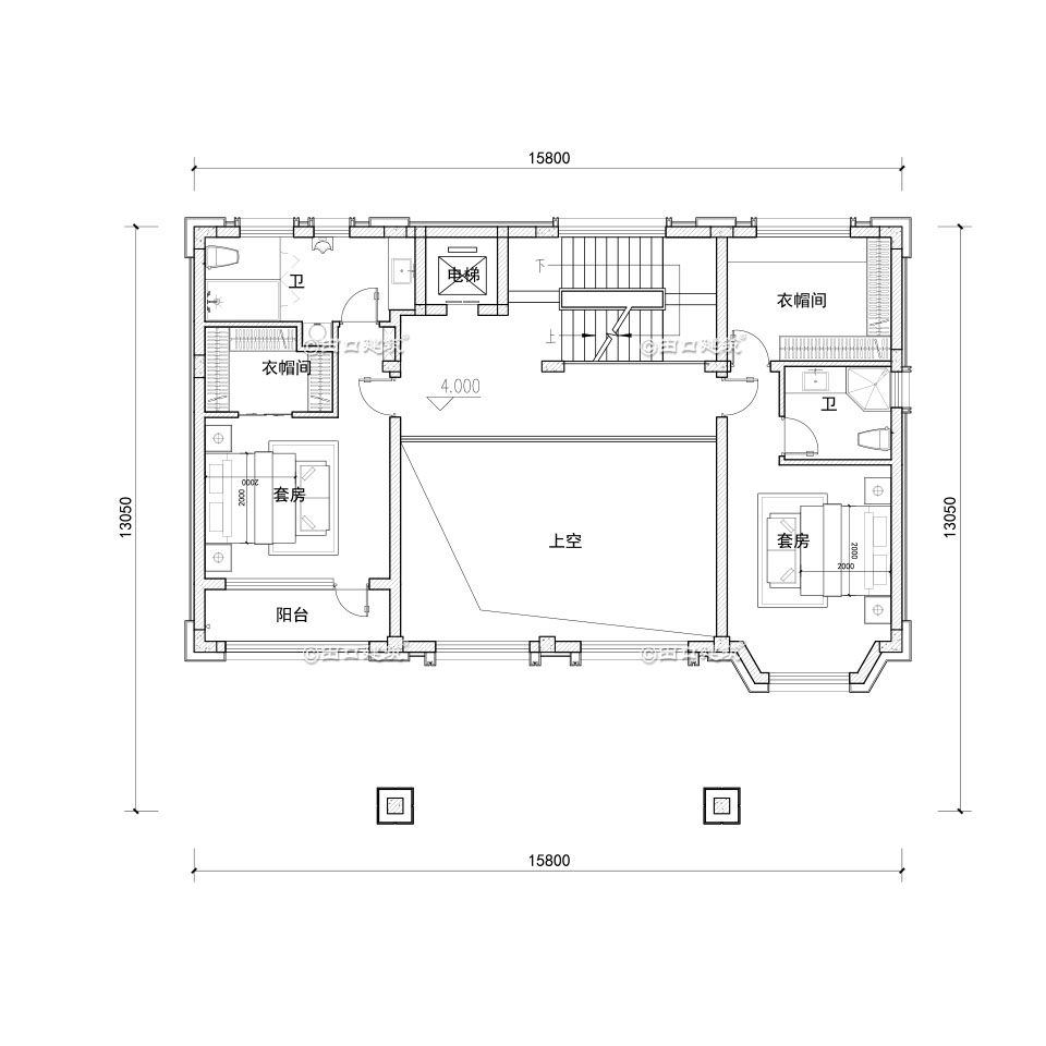
▲三层平面图

三层:两个大套房、两个客房、大阳台;




 造型设计 


▲正立面透视图

▲西南角透视图

▲东南角透视图

▲北立面透视图

▲鸟瞰图

▲院门


END