项目概况
现代风格越来越受年轻人的喜爱,但是总担心漏水和夏天的高温怎么办?也不是没有办法,今天我们就为我们的业主解决了这两个顾虑。业主也是非常喜欢现代简约风格,大玻璃,简洁的线条,干净清爽的外立面,室内大平层布局,特别舒适惬意。我们提出了内天沟加坡屋顶的方案,保证外立面的现代风格不受破坏,同时也解决了上面这两个问题,露台部分则铺隔热砖来解决夏天热的问题。
本项目总建筑面积309.60㎡,其中一层建筑面积为154.80㎡,二层建筑面积为154.80㎡。

▲鸟瞰图
户型设计

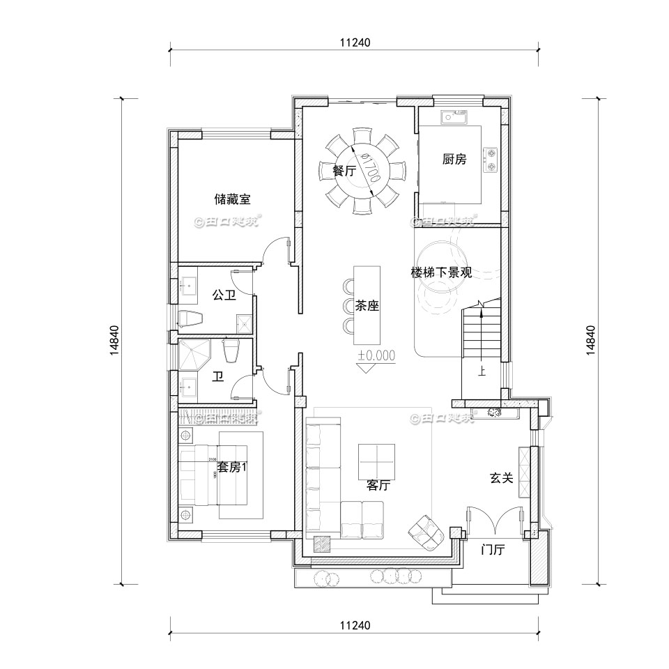
▲一层平面图
一层:门厅、玄关、客厅、茶座、厨房、餐厅、套房、公卫、储藏室;

▲二层平面图
二层:两套房、两个次卧、洗衣房、书房、阳台;
造型设计

▲西北角鸟瞰图

▲东南角鸟瞰图

▲正立面透视图

▲东南角透视图

▲东北角透视图

▲西南角透视图

▲院门透视图
END