项目概况
本项目位于台州天台县,总建筑面积377.91㎡,其中一层建筑面积为131.25㎡,二层建筑面积为131.25㎡,三层建筑面积115.41㎡。
▲东南角鸟瞰图
户型设计
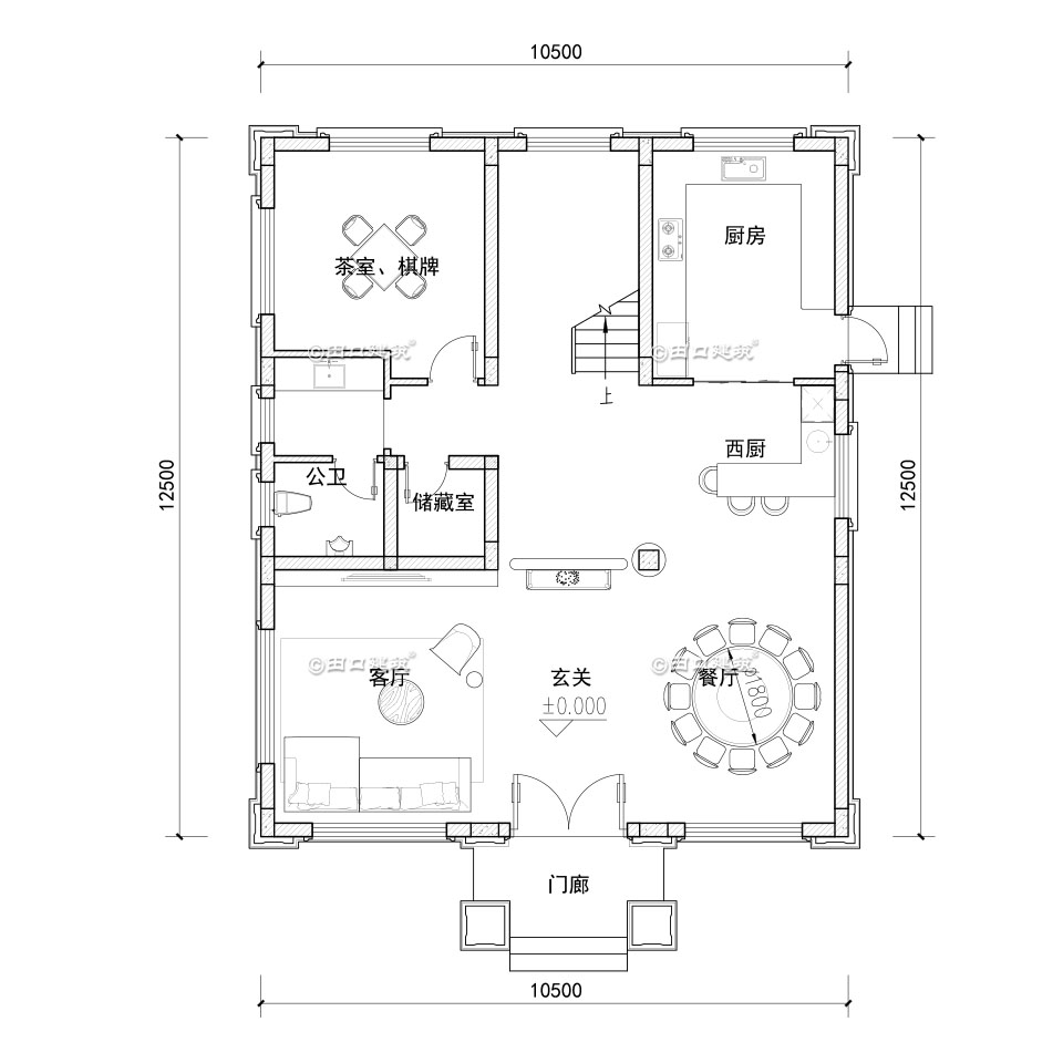
▲一层平面图
一层:门廊、玄关、客厅、餐厅、中西厨房、储藏室、茶室棋牌室、公卫;
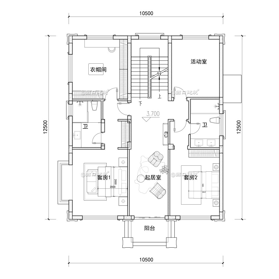
▲二层平面图
二层:两个套房、活动室、起居室、阳台;
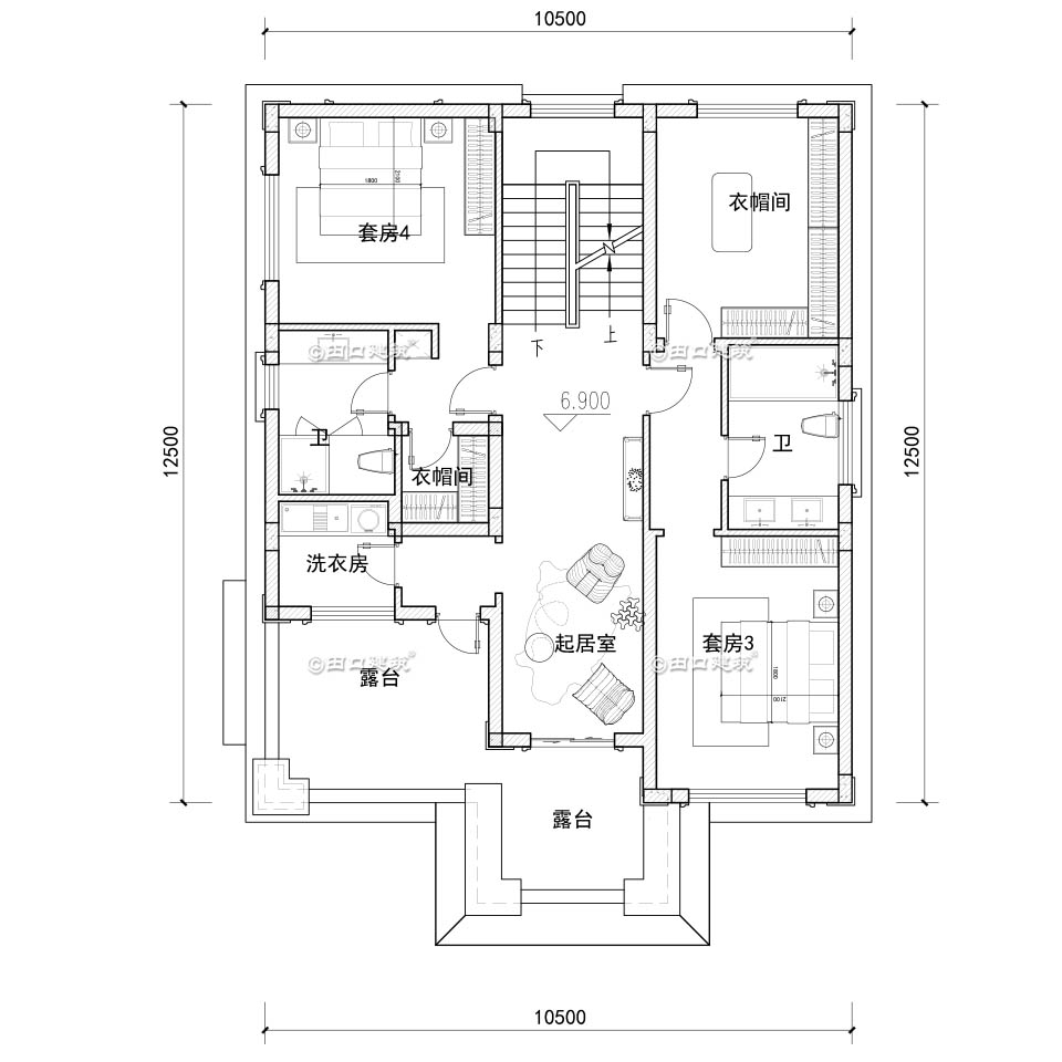
▲三层平面图
三层:大小两个套房、起居室、露台;
造型设计
▲正立面透视图
▲东南角透视图
▲西南角透视图
▲东北角透视图
END