萧山许宅

  • 建设地址:萧山新街
  • 建筑风格:高端定制,法式,欧式
  • 占地尺寸:15.9X9.1
  • 结构形式:框架
  • 占地面积:129.9㎡
  • 毛坯造价:50.0万


 项目概况 


本项目位于杭州萧山新街镇,总建筑面积389.55㎡,其中一层建筑面积为129.85㎡,二层建筑面积为129.85㎡,三层建筑面积129.85㎡。

▲正立面图



 户型设计 


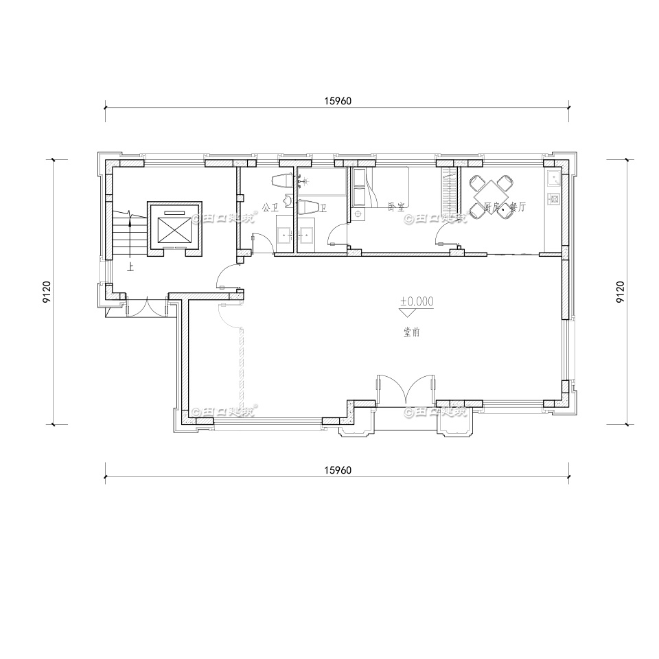
▲一层平面图

一层:门厅、堂前、老人房、餐厨房、公卫;

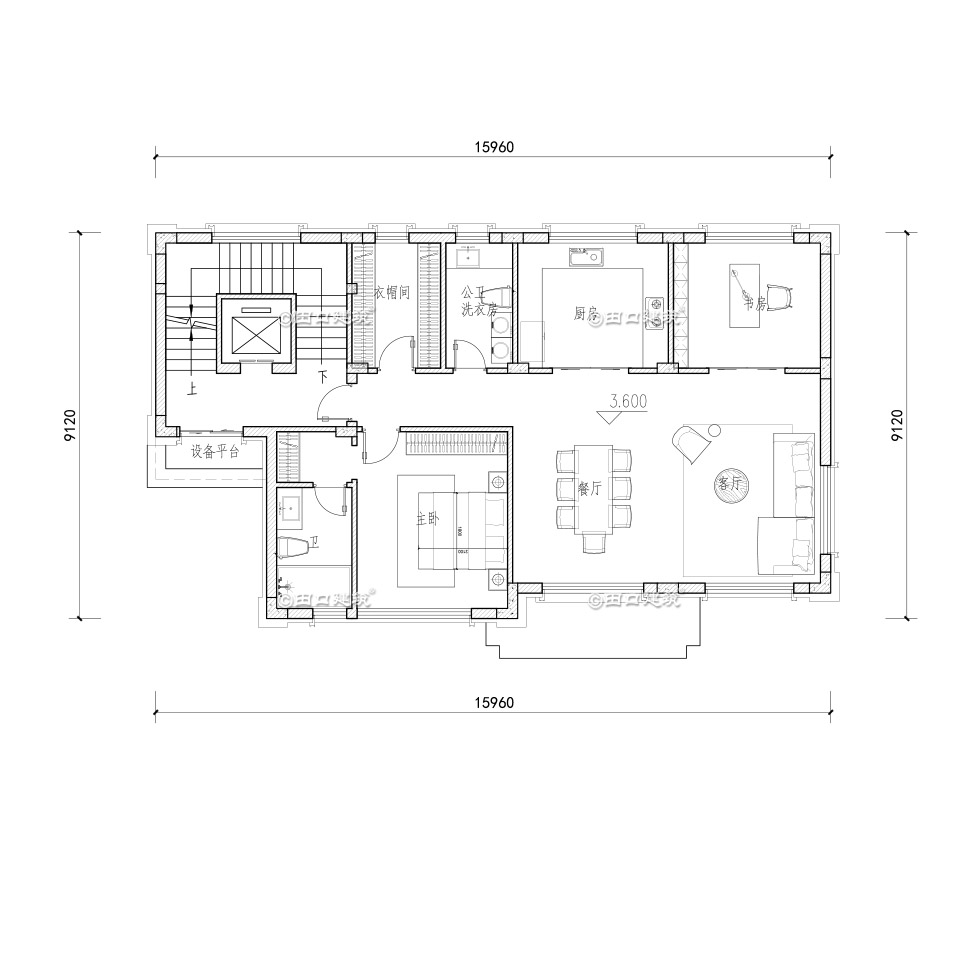
▲二层平面图

二层:一个套房、客厅、餐厅、厨房、书房、公卫、衣帽间;

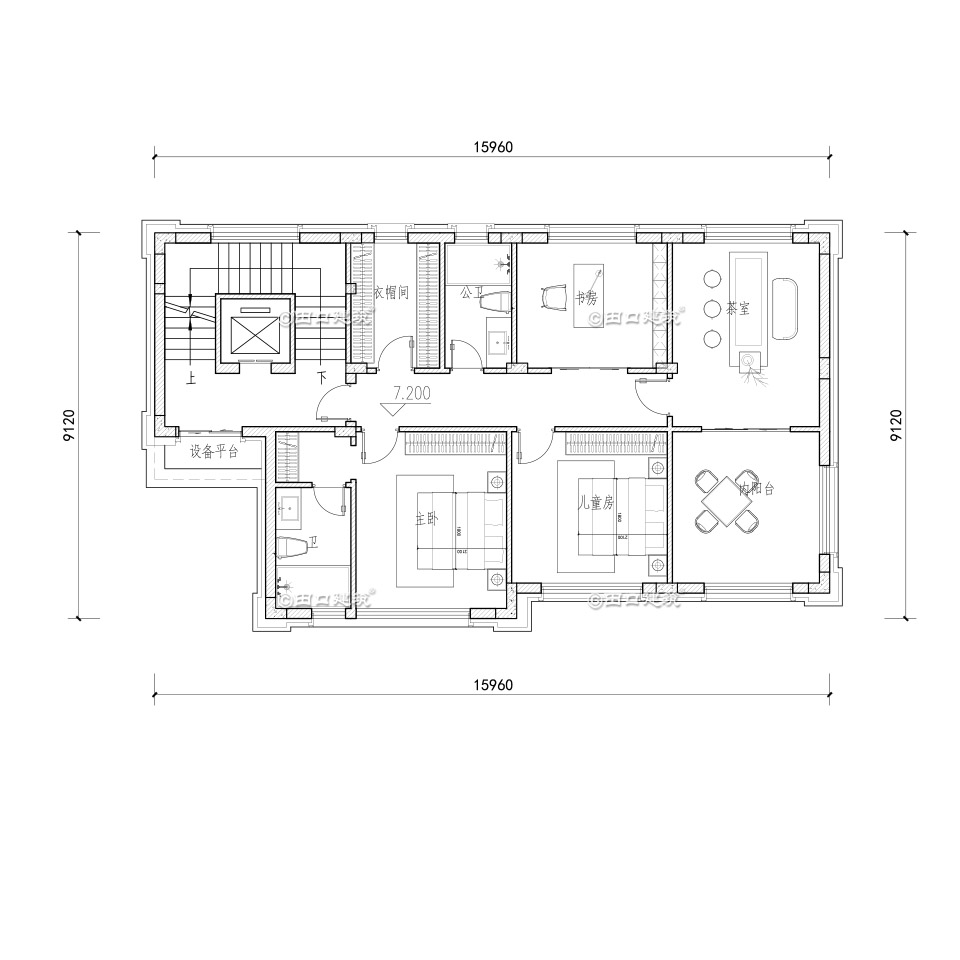
▲三层平面图

三层:一个套房、衣帽间,儿童房、书房、茶室、内阳台;




 造型设计 


▲正立面透视图

▲东南角透视图

▲西立面透视图

▲西北角透视图

▲鸟瞰图



END