项目概况
本项目位于杭州余杭,总建筑面积407.59㎡,其中一层建筑面积为139.88㎡,二层建筑面积为139.88㎡,三层建筑面积127.83㎡。
▲正立面图
户型设计
▲一层平面图
一层:门厅、堂屋、挑空客厅、品茗区、大餐厅(厨房位于附房)、公卫、套房;
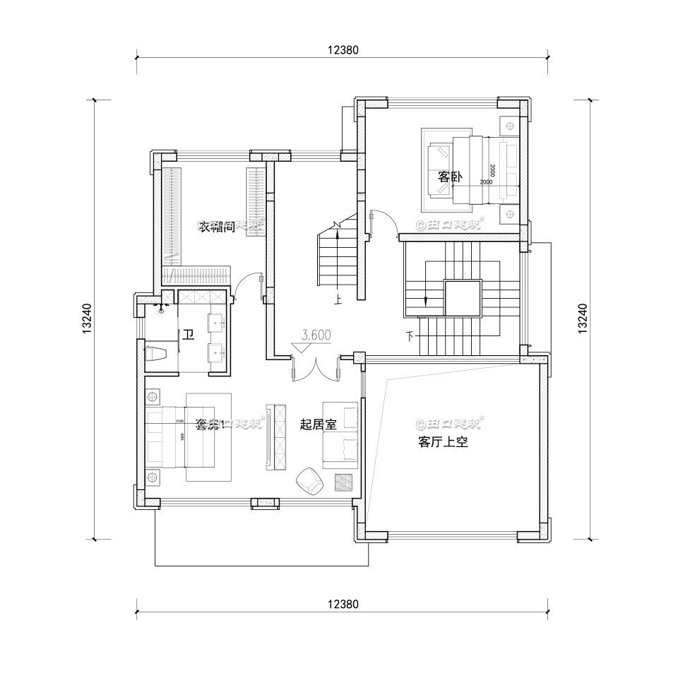
▲二层平面图
二层:一个套房、一个客卧;
▲三层平面图
三层:两个套房、衣帽间,起居室、露台;
造型设计
▲正立面透视图
▲西南角透视图
▲东南角透视图
▲北立面透视图
▲鸟瞰图
END