项目概况
本项目位于绍兴诸暨店口镇,总建筑面积476.5㎡,其中一层建筑面积为169.13㎡,二层建筑面积为169.13㎡,三层建筑面积138.24㎡。

▲东南角鸟瞰图
户型设计

▲一层平面图
一层:门厅、堂前、挑空客厅、茶座、餐厅、中西厨房、储藏室、保姆房套房、棋牌室、公卫;

▲二层平面图
二层:大套房(含套卫、衣帽间)小套房(含套卫); 
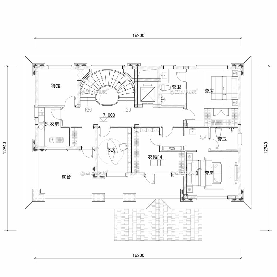
▲三层平面图
三层:东面大小两个套房、书房、洗衣房、露台;
造型设计

▲东南角鸟瞰图

▲正立面透视图

▲东南角透视图

▲西南角透视图

▲西北角透视图
END