湖北天门戴家别墅

  • 建设地址:湖北天门横林镇
  • 建筑风格:现代
  • 占地尺寸:18X11
  • 结构形式:砖混
  • 占地面积:188.0㎡
  • 毛坯造价:30.0万


 项目概况 


本项目位于湖北天门横林镇,总建筑面积330㎡,其中一层建筑面积为188㎡,二层建筑面积为142㎡。

▲鸟瞰图



 户型设计 


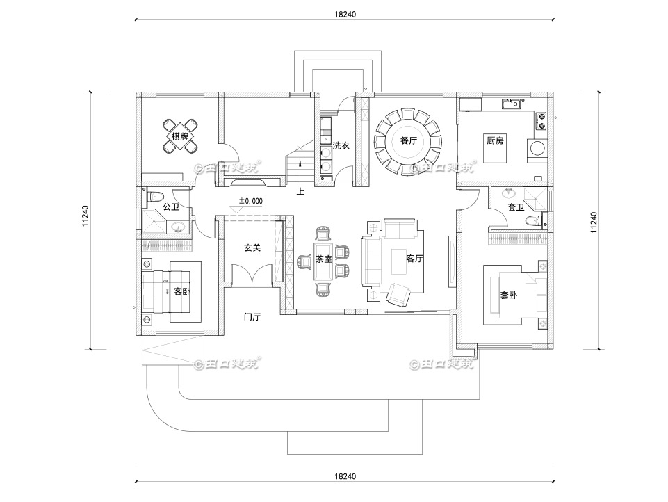
▲一层平面图

一层:门厅、玄关、卧室、棋牌、茶室、客厅、厨房、餐厅、套房、公卫、室外洗衣平台;

▲二层平面图

二层:两套房、客卧、起居室、公卫、露台;



 造型设计 


▲西南角鸟瞰图


▲正立面透视图

▲西南角透视图

▲西北角透视图


END