项目概况
本项目位于金华东阳,总建筑面积708.4㎡,其中地下室建筑面积150.96㎡;架空层建筑面积为130.62㎡;一层建筑面积为156.85㎡,二层建筑面积为154.21㎡,三层建筑面积112.74㎡。

▲正立面图
户型设计

▲地下室平面图
地下室:活动室,储藏室、电梯、杂物间、酒窖;

▲架空层平面图
架空层:门厅、玄关、大小餐厅、厨房、老人房、工具房、公卫、电梯;

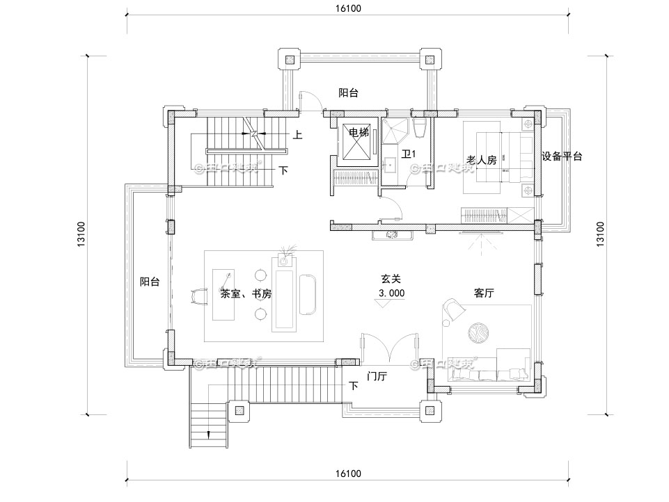
▲一层平面图
一层:门厅、玄关、客厅、茶室、老人房套房、两个阳台;

▲二层平面图
二层:三个套房、电梯、前后阳台露台;

▲三层平面图
三层:套房、卧室、公卫、电梯、洗衣房、露台;
造型设计

▲正立面透视图

▲东南透视图

▲东北角透视图

▲西北角透视图

▲东南角鸟瞰图
▲东北角鸟瞰图
END