余杭良渚徐宅

  • 建设地址:余杭良渚
  • 建筑风格:高端定制,新中式,新亚洲
  • 占地尺寸:12.3X11.5
  • 结构形式:框架
  • 占地面积:121.4㎡
  • 毛坯造价:35.0万


 项目概况 


本项目位于杭州余杭良渚,总建筑面积342.67㎡,其中一层建筑面积为121.41㎡,二层建筑面积为118.04㎡,三层建筑面积103.22㎡;

▲正立面图



 户型设计 


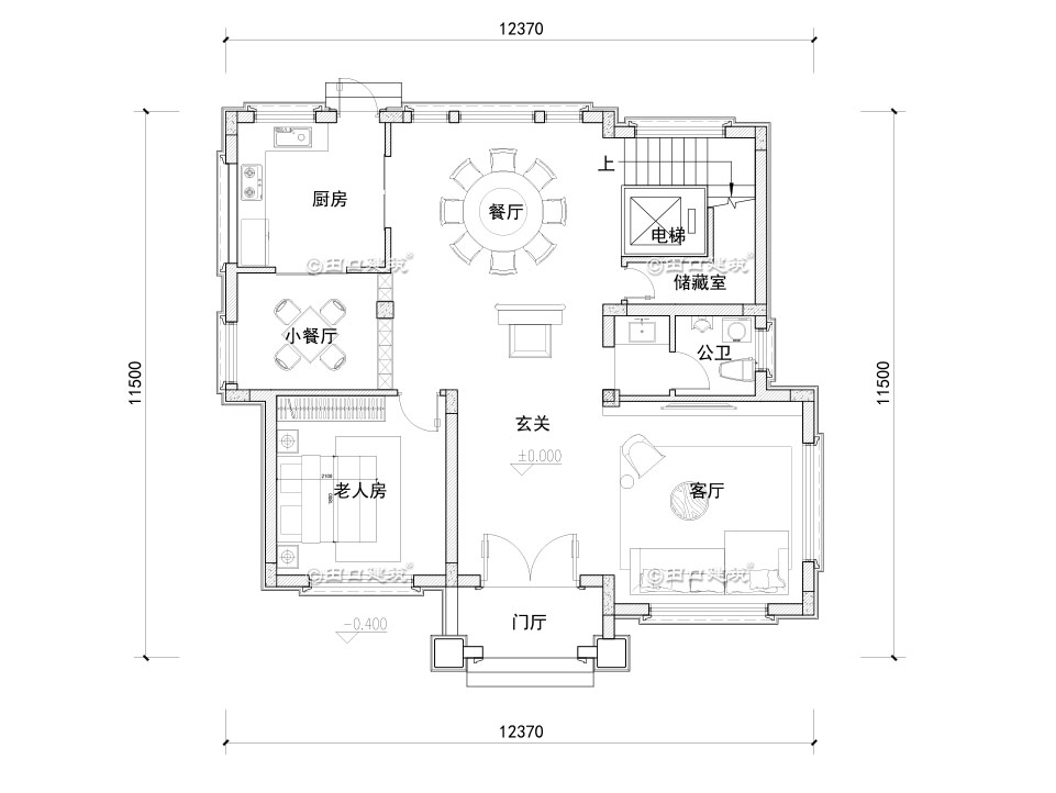
▲一层平面图

一层:门厅,玄关、客厅、厨房、大小餐厅、电梯、储藏室、老人房、公卫;

▲一层平面图

二层:两个套房、次卧(带露台)、起居室;

▲二层平面图

三层:套间、次卧、起居室、公卫、大露台;



 造型设计 


▲西南角鸟瞰图

▲东北角鸟瞰图

▲南立面透视图

▲东南角透视图

▲西南角透视图


     

▲北立面透视图



END