项目概况
本项位于杭州余杭中泰,项目总建筑面积384.2平方米,首层建筑面积104.44平方米,二层建筑面积114.48平方米,三层建筑面积77.88平方米,地下室建筑面积87.40平方米;

▲整体鸟瞰图
户型设计

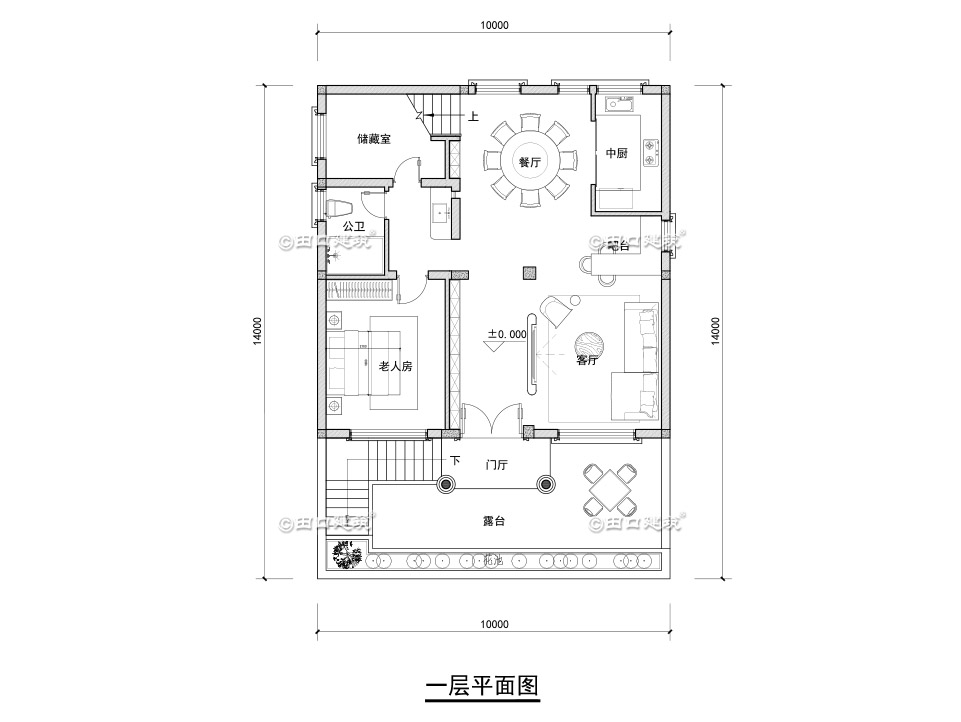
▲一层平面图
一层:门厅、玄关、客厅、餐厅、厨房、老人房、储藏室、公卫;

▲二层平面图
二层:大小两个套房、次卧、储藏室、;

▲三层平面图
三层:套房(带卫、书房/衣帽间、露台)、洗衣房、露台;
造型设计

▲南立面图

▲西南角透视图

▲东南角透视图

▲前鸟瞰图

▲后鸟瞰图
END