项目概况
本项目位于江西余干县,总建筑面积386.60㎡,其中一层建筑面积为124.90㎡,二层建筑面积为150.70㎡,三层建筑面积111.00㎡。

▲总平面图
户型设计

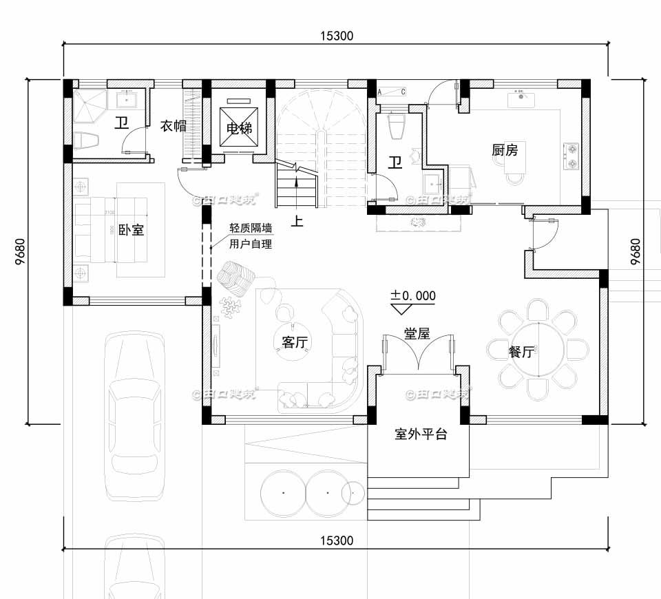
▲一层平面图
一层:门厅、堂屋、客厅、厨房、餐厅、公卫、套房(带卫,衣帽间)、电梯;

▲二层平面图
二层:套房(带卫、衣帽间)、挑空客厅、两卧室、起居室、公卫、电梯、阳台;
▲三层平面图
三层:套房(带卫、衣帽间)、起居室、两卧室、公卫、电梯、大露台;
造型设计

▲东南角鸟瞰图

▲西北角鸟瞰图

▲正立面透视图

▲东南角透视图

▲西南角透视图

▲西北角透视图

▲门厅透视图

▲前院透视图
END