项目概况
这是我们设计过的最小的宅基地了,没有之一。真的是太小了,如果有更好的选择,真的谁都不会选它。正面宽度只有5.5米,做不了两开间。总深度倒是有14.2米,但是前面还有留出距离,因为南面的地是人家的,不确定人家会不会起房子,所以要留出空间。如果按照常规的思路,双跑楼梯一做,整个空间就废了。
业主自身也是工程师,对于自己的地基有清楚的认知,这让我们在设计之中省了不少心,不需要花很多时间跟业主解释为什么这样做不了,那样也不能做。
本项目总建筑面积236.1㎡,其中一层建筑面积为77.96㎡,二层建筑面积为84.3㎡,三层建筑面积为73.78㎡。

▲总平面图
户型设计

▲一层平面图
一层:门厅(虽小但不可或缺)、玄关、客厅、餐厅、厨房、父母房、卫生间;

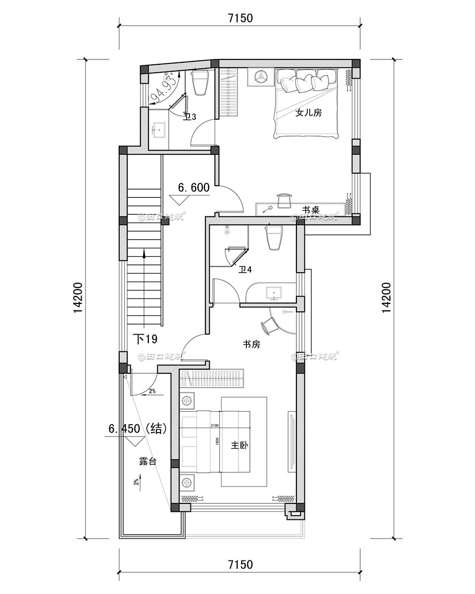
▲二层平面图
二层:主卧(带衣帽、书房、卫生间、露台)、女儿房、公卫、洗衣阳台;

▲三层平面图
三层:主卧(书房、卫生间)、女儿房(带卫)、露台;
造型设计

▲西南角鸟瞰图

▲东北角鸟瞰图

▲正立面透视图

▲西南角透视图

▲东南角透视图

▲东北角透视图
END