项目概况
今天这个双拼别墅结合了农村和城市特色,农村的房子总是少不少门头、玄关(兼堂屋),城市的排屋又是开间小,大进深(为了可以多做几户)。
本项目总建筑面积861.84㎡,其中一层建筑面积为219.9㎡,二层建筑面积为219.9㎡,三层建筑面积为202.14㎡,地下室建筑面积为219.9㎡。

▲总平面图
户型设计

▲地下室平面图
地下室(每户):影音室、桌球室、棋牌室、酒窖、下沉庭院、卫生间;

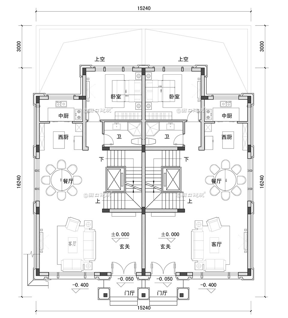
▲二层平面图
一层(每户):门厅、玄关、客厅、餐厅、中西厨、卧室、卫;

▲三层平面图
二层(每户):套房1(带男女衣帽间、卫生间)、套房2(带起居室、衣帽间、卫生间);

▲三层平面图
三层(每户):套房1(带书房、衣帽、卫生间、露台)、套房2(带卫)、起居室;
造型设计

▲东南角鸟瞰图

▲西北角鸟瞰图

▲东北角鸟瞰图

▲正立面透视图

▲东南角透视图

▲东立面透视图

▲北立面透视图
END