项目概况
此项目为客户为父母所建,因为年迈的父母不愿离开生活了几十年的地方。其实城里都有房子,只是乡情无可替代。
本项目总建筑面积514.85㎡,其中一层建筑面积为179.60㎡,二层建筑面积为160.53㎡,地下室建筑面积174.72㎡。

▲总平面图
户型设计

▲一层平面图
一层:门厅、堂屋、茶座、客厅、厨房、餐厅、卧室带卫、棋牌室、公卫、储藏室;

▲二层平面图
二层:四套房带卫(其中一个带衣帽间)、起居室、被褥间、露台;

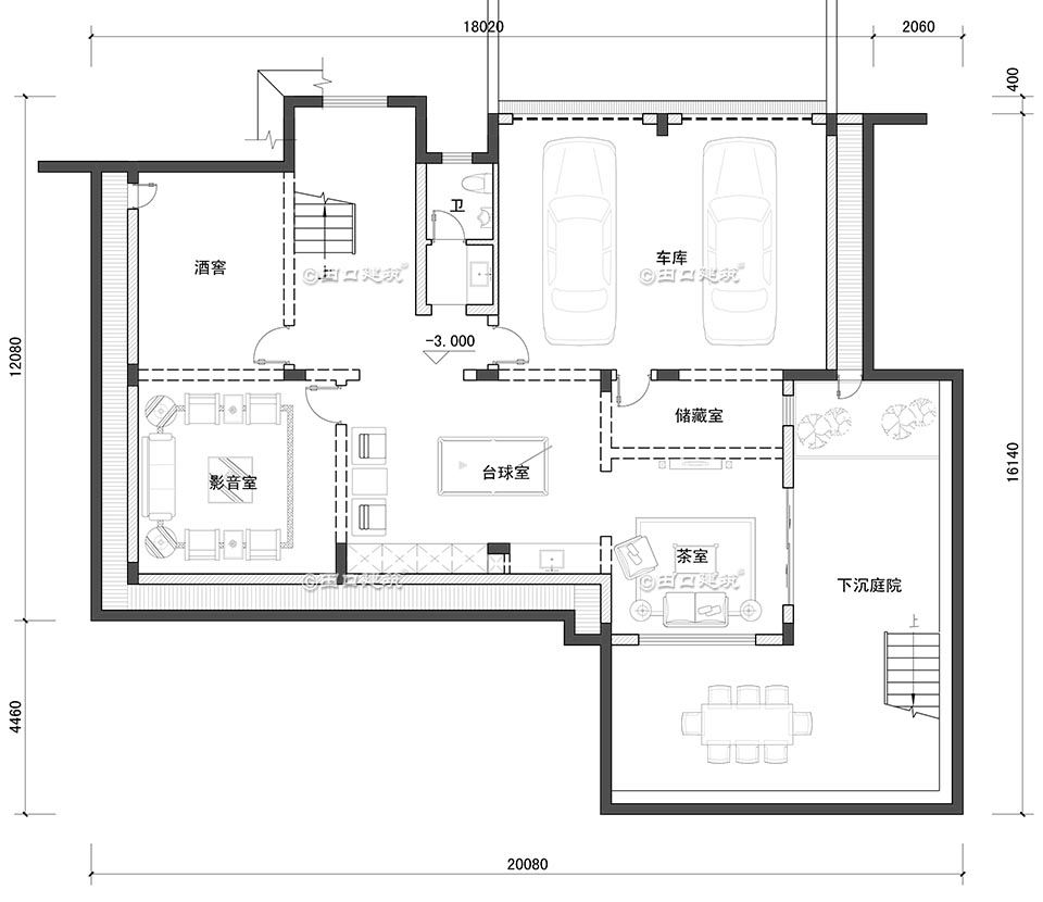
▲地下室平面图
地下室:车库、台球室、茶室、影音室、酒窖、储藏室、公卫、下沉庭院;
造型设计

▲西南角鸟瞰图

▲东北角鸟瞰图

▲正立面透视图

▲院内透视图

▲东南角透视图

▲西南角透视图

▲北立面透视图

▲下沉庭院透视图

▲前院透视图
END