项目概况
此地基背山,正面朝向田野,且高出田野足足2米有余,从远处看非常显眼。业主希望设计一栋在整个村子里最独特的房子,在看过现场与业主沟通之后,我们建议业主做现代风格,在村里绝对独一无二的存在。
此别墅占地面积223.36平方米(一层),二层229.87平方米,三层186.25平方米。

▲鸟瞰图
户型设计

▲一层平面图
父母房(带卫生间、衣帽间),客厅、厨房、大餐厅、棋牌室、影音室、玄关、公卫、门厅;

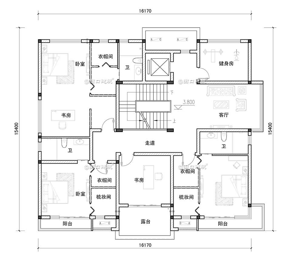
▲二层平面图
三大套房(带卫生间、衣帽间、其中一个还带书房,两个带阳台),客厅、健身、书房、储藏室、露台;

▲二层平面图
一大套房(带卫生间、衣帽间)、一次卧、台球室(带卫生间、露台)、客厅、储藏室、书房、、公卫、大露台;
造型设计

▲鸟瞰图

▲鸟瞰图

▲南立面图

▲西南角透视图

▲东南角透视图

▲西北角透视图
END