项目概况
此项目业主是我们朋友,也是设计师,对于自己的房子有一定的想法,大家也比较了解,沟通比较顺利。业主希望现代简洁一些,但是又要兼顾实用,室内空间主要是实用,外部空间可以考虑灰空间来丰富建筑立面。
本项目总建筑面积527.62㎡,其中一层建筑面积为119.35㎡,二层建筑面积为144.46㎡,三层建筑面积144.46㎡,地下室建筑面积119.35㎡。

▲总平面图
户型设计

▲一层平面图
一层:外廊、客厅、厨房、餐厅、公卫、茶座、储藏室;

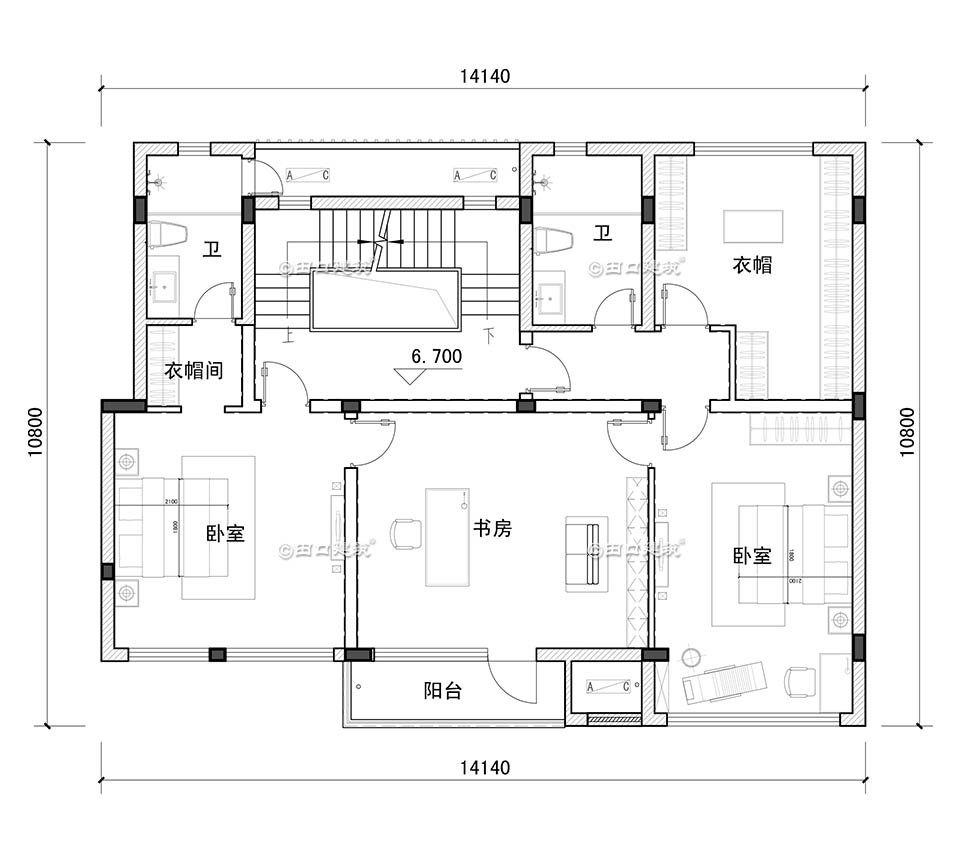
▲二层平面图
二层:一套房(带卫、衣帽)、三卧室、公共衣帽间、公卫、阳台;
▲三层平面图
三层:两套房(带卫、衣帽)、共享书房、共享阳台;

▲地下室平面图
地下室:业主自行设计;
造型设计

▲西南角鸟瞰图

▲东北角鸟瞰图

▲正立面透视图

▲西南角鸟瞰图

▲东南角透视图

▲北立面透视图

▲正立面透视图

▲下沉庭院透视图
END